内蒙古自治区人民政府网站
首页
政务动态
政务公开
办事服务
互动交流
专题专栏
部门网站导航
登录/注册
无障碍浏览
蒙古文版
微博
微信
自治区政府组成部门
发展和改革委员会
教育厅
科学技术厅
工业和信息化厅
民族事务委员会
公安厅
民政厅
司法厅
财政厅
人力资源和社会保障厅
自然资源厅
住房和城乡建设厅
生态环境厅
交通运输厅
水利厅
农牧厅
商务厅
文化和旅游厅
卫生健康委员会
退役军人事务厅
应急管理厅
审计厅
自治区直属特设机构
国有资产监督管理委员会
自治区直属机构
市场监督管理局
林业和草原局
广播电视局
体育局
统计局
能源局
地方金融监督管理局
国防动员办公室
医保局
信访局
list
搜本站
搜平台
搜索
首页
政务动态
政务公开
办事服务
互动交流
专题专栏
内蒙古自治区人民政府网站
微信
微博
蒙古文版
暖心专区
登录/注册
部门网站导航
自治区政府组成部门
发展和改革委员会
教育厅
科学技术厅
工业和信息化厅
民族事务委员会
公安厅
民政厅
司法厅
财政厅
人力资源和社会保障厅
自然资源厅
住房和城乡建设厅
生态环境厅
交通运输厅
水利厅
农牧厅
商务厅
文化和旅游厅
卫生健康委员会
退役军人事务厅
应急管理厅
审计厅
自治区直属特设机构
国有资产监督管理委员会
自治区直属机构
市场监督管理局
林业和草原局
广播电视局
体育局
统计局
能源局
地方金融监督管理局
人民防空办公室
乡村振兴局
医保局
信访局
退出长辈版
搜本站
搜本站
搜平台
网站首页
政务动态
政务公开
办事服务
互动交流
专题专栏
当前位置:
首页
>
专题专栏
>
高质量完成五大任务全方位建设模范自治区
>
发展成就
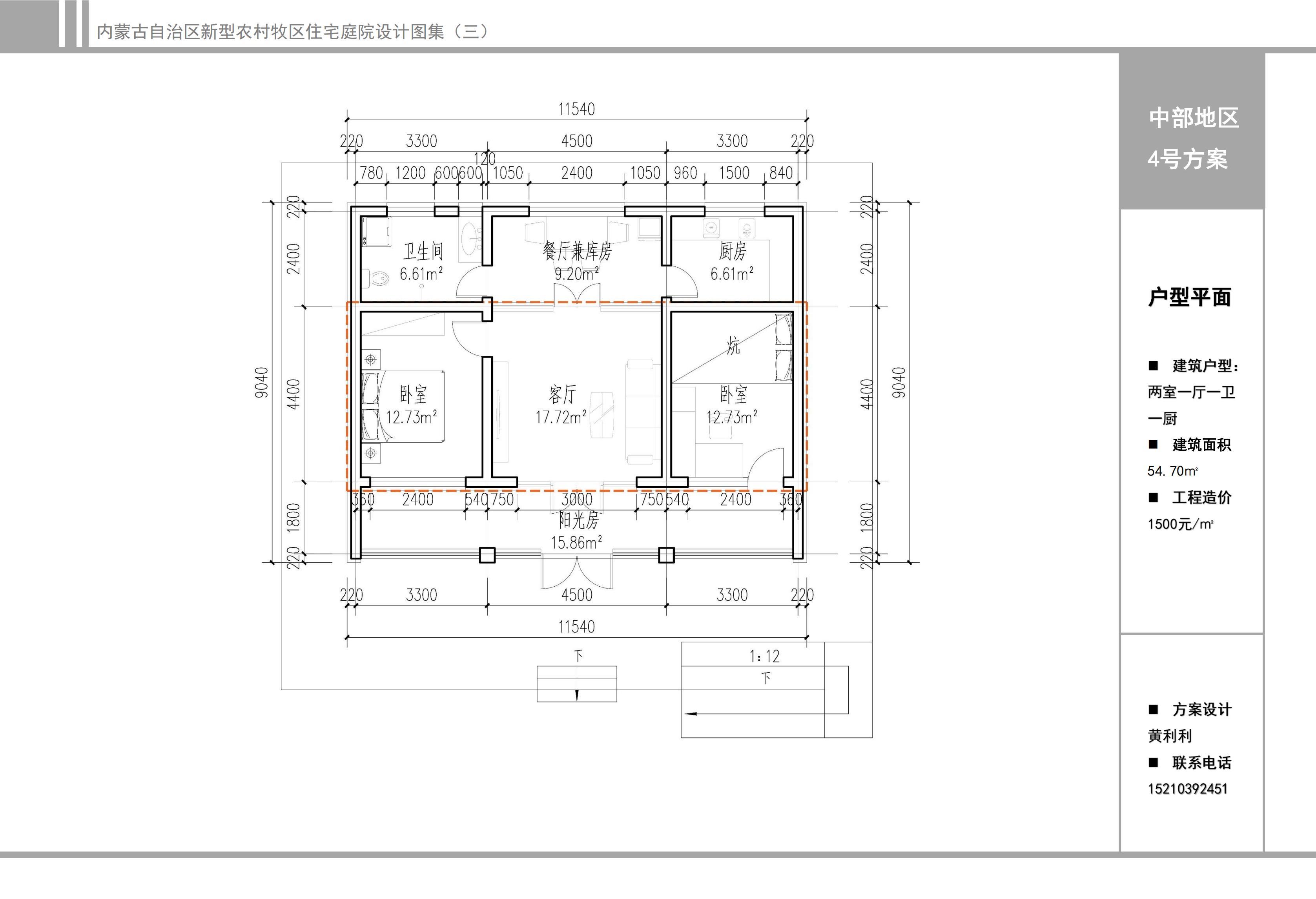
内蒙古自治区新型农村牧区住宅庭院设计图集
来源:自治区住房和城乡建设厅 发布日期:2025-02-14 16:12
字体:[
大
|
中
|
小
]
分享到:
打印本页